ストローク別最高速度
B3N1MS3M
(単位はmm/s)
| ストローク | ||||||||||
|---|---|---|---|---|---|---|---|---|---|---|
| 100 | 200 | 250 | 300 | 400 | 500 | 600 | 700 | 800~2250 | ||
| X軸 | - | - | 1300 | |||||||
| Y軸 | - | 1200 | - | - | ||||||
| Z軸 | 600 | - | - | - | - | - | ||||
共通仕様
| 駆動方式 | ボールねじ 転造C5相当 |
| 繰返し位置決め精度 | ±0.01mm |
| ロストモーション | 0.02mm以下 |
| ガイド | ベース一体型 |
| ベース | 材質:アルミ 白色アルマイト処理 |
| X軸モーター出力/リード | 400W/20mm |
| Y軸モーター出力/リード | 200W/20mm |
| Z軸モーター出力/リード | 200W/10mm |
可搬質量
表内の単位はkgです。
B3N1MS3M
| Y軸ストローク | |||||||
|---|---|---|---|---|---|---|---|
| 200 | 300 | 400 | 500 | 600 | 700 | ||
| Z軸ストローク | 100 | 13.0 | 9.1 | ||||
| ~200 | 11.7 | 8.1 | |||||
| ~300 | 10.7 | 7.1 | |||||
| ~400 | 9.7 | 6.1 | |||||
適応コントローラー
各コントローラーのページをご参照ください。(7-4ページ) なお、コントローラーは、別途販売となります。
海外規格
選定上の注意
| (1)型式項目のストローク欄は型式中ではcm(センチメートル)表記となります。 (2)ケーブル長はX軸コネクターボックスから(ケーブルキャリア仕様の場合はX軸のアクチュエーターケーブルから)コントローラーまでの長さです。標準は3mか5mですが、それ以外の長さもm単位で対応可能です。最長20mまで対応可能です。 (3)定格加速度は0.3Gです。最大1Gまで動作可能ですが、加速度を上げると可搬質量は低下します。 |
型式内容
| XY組合せ 方向(注1) | Z軸速度 タイプ | 型式 |
|---|---|---|
| 1 | M | ICSPA6-B3N1MS3M-①-②③-④⑤-⑥⑦-T2-⑧-⑨ |
(注1) XY組合せ方向は下図を参照ください。
(注) 上記型式の①~⑨の内容は下表をご参照ください。
型式内記号説明
| 番号 | 内容 | 表記 |
|---|---|---|
| ① | エンコーダー種類 | A:アブソリュート I :インクリメンタル |
| ② | X軸ストローク | 25:250mm ~ 225:2250mm |
| ③ | X軸オプション | オプション表参照 |
| ④ | Y軸ストローク | 20:200mm ~ 70:700mm |
| ⑤ | Y軸オプション | オプション表参照 |
| ⑥ | Z軸ストローク | 10:100mm ~ 40:400mm |
| ⑦ | Z軸オプション | オプション表参照 |
| ⑧ | ケーブル長 | 3L:3m 5L:5m □L:□m |
| ⑨ | Y軸-Z軸 ケーブル配線 | CT-CT:ケーブルキャリア |
XY組合せ方向

構成軸
| 構成軸 | 型式 | 参照頁 |
|---|---|---|
| X軸 | NS-LXMM-①-400-20-②-T2-③-NT1 | 2-557 |
| Y1軸 | ISPA-MYM-①-200-20-④-T2-⑤ | - |
| Y2軸 | ISPA-MYM-①-200-20-④-T2-⑤ | - |
| Z1軸 | ISPA-MZM-①-200-10-⑥-T2-⑦ | - |
| Z2軸 | ISPA-MZM-①-200-10-⑥-T2-⑦ | - |
(注) 上記型式の①~⑦は上表の型式内記号をご参照ください。なお、ストロークはmm(ミリメートル)表記となります。
(注) ナット回転型/大型リニアは単軸でもケーブルキャリアが装着されますが、直交ロボットに組む場合は別のケーブルキャリアを使用するため、単軸はケーブルキャリアなし(NT1)の仕様となります。
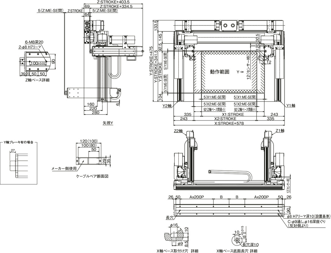
寸法図
ICSPA6-B3N1MS3M-CT-CT(ケーブルキャリア仕様)
ME:メカニカルエンド
SE:ストロークエンド
(注) 図面の組合せ位置が原点位置となります。原点位置を変更する場合は、オプションのNMをご指定ください。また納品後原点位置を変える場合は返却調整が必要ですのでご注意ください。
(注) ケーブルキャリア断面図の( )はYZ間のケーブルキャリア寸法です。

| Xストローク | 250 | 300 | 350 | 400 | 450 | 500 | 550 | 600 | 650 | 700 | 750 | 800 | 850 | 900 | 950 | 1000 | 1050 | 1100 | 1150 | 1200 |
|---|---|---|---|---|---|---|---|---|---|---|---|---|---|---|---|---|---|---|---|---|
| A | 1 | 1 | 1 | 1 | 1 | 1 | 1 | 2 | 2 | 2 | 2 | 2 | 2 | 2 | 2 | 2 | 3 | 3 | 3 | 3 |
| B | 138 | 163 | 188 | 213 | 238 | 263 | 288 | 113 | 138 | 163 | 188 | 213 | 238 | 263 | 288 | 313 | 138 | 163 | 188 | 213 |
| C | 10 | 10 | 10 | 10 | 10 | 10 | 10 | 14 | 14 | 14 | 14 | 14 | 14 | 14 | 14 | 14 | 18 | 18 | 18 | 18 |
| Xストローク | 1250 | 1300 | 1350 | 1400 | 1450 | 1500 | 1550 | 1600 | 1650 | 1700 | 1750 | 1800 | 1850 | 1900 | 1950 | 2000 | 2050 | 2100 | 2150 | 2200 | 2250 |
|---|---|---|---|---|---|---|---|---|---|---|---|---|---|---|---|---|---|---|---|---|---|
| A | 3 | 3 | 3 | 3 | 4 | 4 | 4 | 4 | 4 | 4 | 4 | 4 | 5 | 5 | 5 | 5 | 5 | 5 | 5 | 5 | 6 |
| B | 238 | 263 | 288 | 313 | 138 | 163 | 188 | 213 | 238 | 263 | 288 | 313 | 138 | 163 | 188 | 213 | 238 | 263 | 288 | 313 | 138 |
| C | 18 | 18 | 18 | 18 | 22 | 22 | 22 | 22 | 22 | 22 | 22 | 22 | 26 | 26 | 26 | 26 | 26 | 26 | 26 | 26 | 30 |



