
(注) 写真はシングルスライダーです。
型式スペック
| 型式 | 対応ドライバー 出力 (W) | 可搬質量 | 定格 推力 (N) | 最大 推力 (N) | 最大 加速度 (G) | ストローク (mm) | |
|---|---|---|---|---|---|---|---|
| 水平 (kg) | 垂直 (kg) | ||||||
| LSA-N10SM-I-100S-①-T2-②-③ | 100S | 15 | - | 54 | 162 | 3 | 100~3900 (100mm毎) |
記号説明 ① ストローク ② ケーブル長 ③ オプション
| ストローク (mm) | 100~3900 (100mm毎) |
|---|---|
| 最高速度 (mm/s) | 2500 |
アクチュエーター仕様
| 項目 | 内容 |
|---|---|
| 駆動方式 | リニアサーボモーター |
| 繰返し位置決め精度 | ±0.005mm |
| ロストモーション | 0.02mm以下 |
| 動的許容モーメント(注2) | Ma:76.4N・m Mb:46.3N・m Mc:25.7N・m |
| ベース | 材質:アルミ 黒色アルマイト処理 |
| 使用周囲温度・湿度 | 0~40℃、 85%RH以下 (結露無きこと) |
(注2) 基準定格寿命10,000km、標準荷重係数3.5の場合です。走行寿命は運転条件、取付け状態によって異なります。1-180ページにて走行寿命をご確認ください。
適応コントローラー
本ページのアクチュエーターは下記のコントローラーで動作が可能です。ご使用になる用途に応じたタイプをご選択ください。
| 名称 | 外観 | 最大接続 可能軸数 | 電源電圧 | 制御方法 | 最大位置決め点数 | ||||||||||||||
|---|---|---|---|---|---|---|---|---|---|---|---|---|---|---|---|---|---|---|---|
| ポジショナー | パルス列 | プログラム | ネットワーク ※選択 | ||||||||||||||||
| DV | CC | CIE | PR | CN | ML | ML3 | EC | EP | PRT | SSN | ECM | ||||||||
| SCON-CB/CGB | ![]() | 1 | 単相AC200V | ● | ● | - | ● | ● | ● | ● | ● | ● | ● | ● | ● | ● | - | - | 512 (ネットワーク仕様は768) |
| SCON-LC/LCG | ![]() | 1 | - | - | ● | ● | ● | - | ● | ● | ● | - | ● | ● | ● | - | - | 512 (ネットワーク仕様は768) | |
| SSEL-CS | ![]() | 2 | ● | - | ● | ● | ● | - | ● | - | - | - | - | ● | - | - | - | 20000 | |
| XSEL-P/Q | ![]() | 6 | 単相AC200V 三相AC200V | - | - | ● | ● | ● | - | ● | - | - | - | - | ● | - | - | - | 20000 |
(注) DV、CCなどのネットワーク略称記号については、7-17ページをご確認ください。
(注) XSEL-P/Qの5、6軸目は接続できません。
(注) マルチスライダーは2軸コントローラか、SCON2台での制御になります。
(注) コントローラーのドライバは100Wですが、SCONコントローラーの大きさは400W以上のサイズになります。(7-196ページ参照)また、SCON1台あたりの回生抵抗の必要数の目安も、400Wで選定してください。
海外規格
選定上の注意
| (1)ストロークが短い場合最高速度に到達しない場合があります。 (2)「型式スペック」の可搬質量は最大可搬質量です。動作条件により可搬質量は異なります。詳細は総合カタログ2017・2-693ページをご参照ください。 (3)水平設置以外(垂直、横立て、天吊り等)でのご使用は出来ませんのでご注意ください。 (4)張出し負荷長の目安は、Ma・Mb・Mc方向340mm以下です。 |
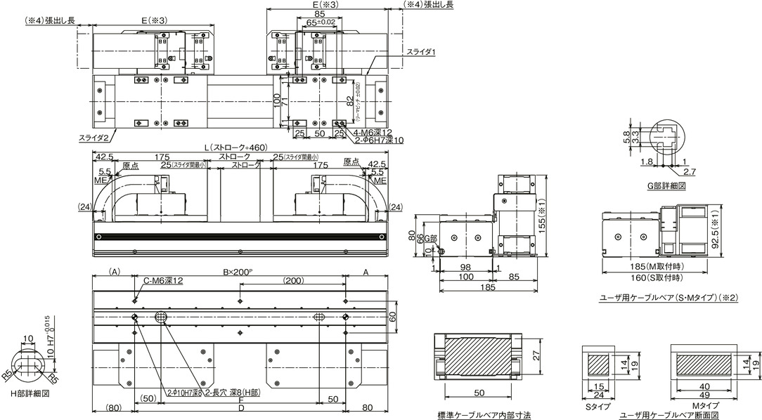
寸法図
ME:メカニカルエンド
※1 ケーブルキャリアが膨らみ下記寸法より若干大きくなる可能性があります。
※2 オプションおよびユーザー用ケーブルキャリアはストロークが2000mm以下の場合のみ対応可能です。
※3 オプションおよびユーザー用ケーブルキャリア仕様の場合E寸法は「表中寸法-60mm」となります。
※4 ケーブルキャリアの張出し長は下記の通りです。
標準ケーブルキャリア:最大10mm
オプションおよびユーザー用ケーブルキャリア:最大25mm
(注) 許容モーメントオフセット基準位置はスライダーワーク取付位置より49mmのところになります。

ストローク別寸法・質量
| ストローク | 100 | 200 | 300 | 400 | 500 | 600 | 700 | 800 | 900 | 1000 | 1100 | 1200 | 1300 | 1400 | 1500 | 1600 | 1700 | 1800 | 1900 | 2000 | 2100 | 2200 | 2300 | 2400 | 2500 | 2600 | 2700 | 2800 | 2900 | 3000 | 3100 | 3200 | 3300 | 3400 | 3500 | 3600 | 3700 | 3800 | 3900 |
|---|---|---|---|---|---|---|---|---|---|---|---|---|---|---|---|---|---|---|---|---|---|---|---|---|---|---|---|---|---|---|---|---|---|---|---|---|---|---|---|
| L | 560 | 660 | 760 | 860 | 960 | 1060 | 1160 | 1260 | 1360 | 1460 | 1560 | 1660 | 1760 | 1860 | 1960 | 2060 | 2160 | 2260 | 2360 | 2460 | 2560 | 2660 | 2760 | 2860 | 2960 | 3060 | 3160 | 3260 | 3360 | 3460 | 3560 | 3660 | 3760 | 3860 | 3960 | 4060 | 4160 | 4260 | 4360 |
| A | 80 | 30 | 80 | 30 | 80 | 30 | 80 | 30 | 80 | 30 | 80 | 30 | 80 | 30 | 80 | 30 | 80 | 30 | 80 | 30 | 80 | 30 | 80 | 30 | 80 | 30 | 80 | 30 | 80 | 30 | 80 | 30 | 80 | 30 | 80 | 30 | 80 | 30 | 80 |
| B | 2 | 3 | 3 | 4 | 4 | 5 | 5 | 6 | 6 | 7 | 7 | 8 | 8 | 9 | 9 | 10 | 10 | 11 | 11 | 12 | 12 | 13 | 13 | 14 | 14 | 15 | 15 | 16 | 16 | 17 | 17 | 18 | 18 | 19 | 19 | 20 | 20 | 21 | 21 |
| C | 6 | 8 | 8 | 10 | 10 | 12 | 12 | 14 | 14 | 16 | 16 | 18 | 18 | 20 | 20 | 22 | 22 | 24 | 24 | 26 | 26 | 28 | 28 | 30 | 30 | 32 | 32 | 34 | 34 | 36 | 36 | 38 | 38 | 40 | 40 | 42 | 42 | 44 | 44 |
| D | 400 | 500 | 600 | 700 | 800 | 900 | 1000 | 1100 | 1200 | 1300 | 1400 | 1500 | 1600 | 1700 | 1800 | 1900 | 2000 | 2100 | 2200 | 2300 | 2400 | 2500 | 2600 | 2700 | 2800 | 2900 | 3000 | 3100 | 3200 | 3300 | 3400 | 3500 | 3600 | 3700 | 3800 | 3900 | 4000 | 4100 | 4200 |
| E | 230 | 280 | 330 | 380 | 430 | 480 | 530 | 580 | 630 | 680 | 730 | 780 | 830 | 880 | 930 | 980 | 1030 | 1080 | 1130 | 1180 | 1230 | 1280 | 1330 | 1380 | 1430 | 1480 | 1530 | 1580 | 1630 | 1680 | 1730 | 1780 | 1830 | 1880 | 1930 | 1980 | 2030 | 2080 | 2130 |
| F | 300 | 400 | 500 | 600 | 700 | 800 | 900 | 1000 | 1100 | 1200 | 1300 | 1400 | 1500 | 1600 | 1700 | 1800 | 1900 | 2000 | 2100 | 2200 | 2300 | 2400 | 2500 | 2600 | 2700 | 2800 | 2900 | 3000 | 3100 | 3200 | 3300 | 3400 | 3500 | 3600 | 3700 | 3800 | 3900 | 4000 | 4100 |
| 質量(kg) | 14.7 | 15.9 | 17.1 | 18.2 | 19.4 | 20.6 | 21.8 | 23.0 | 24.2 | 25.4 | 26.6 | 27.8 | 28.9 | 30.1 | 31.3 | 32.5 | 33.7 | 34.9 | 36.1 | 37.3 | 38.5 | 39.7 | 40.8 | 42.0 | 43.2 | 44.4 | 45.6 | 46.8 | 48.0 | 49.2 | 50.3 | 51.6 | 52.7 | 53.9 | 55.1 | 56.3 | 57.5 | 58.7 | 59.8 |










