
各軸の動作方向

メインスペック
| 項目 | 内容 | ||||
|---|---|---|---|---|---|
| C4SL(G) | C4SH(G) | C4(G) | |||
| リード | ボールねじリード(mm) | X軸 | 8 | 13.3相当 | 24相当 | 
| Y軸 | 8 | 13.3相当 | 24相当 | ||
| Z軸 | 2.14相当 | 5相当 | 12 | ||
| R軸 | ー | ||||
| 最大可搬質量(kg) | Z軸 | 15 | 7 | 6 | |
| R軸 | |||||
| 速度/加減速度 | 最高速度 | X軸(mm/s) | 600 | 750 | 700 | 
| Y軸(mm/s) | 600 | 800 | 640 | ||
| Z軸(mm/s) | 170 | 400 | 400 | ||
| R軸(度/s) | 1500 | 1500 | 1000 | ||
| 最大加減速度(G) | X軸 | 0.2 | 0.3 | 0.2 | |
| Y軸 | 0.3 | 0.3 | 0.2 | ||
| Z軸 | 0.3 | 0.5 | 0.2 | ||
| R軸 | 1.5 | 1.5 | 1.1 | ||
| 押付け | 押付け時最大推力(N) | ー | ー | ー | |
| ブレーキ(Z軸標準装備) | ブレーキ仕様 | 無励磁作動電磁ブレーキ | |||
| ブレーキ保持力(kgf) | 15 | 7 | 6 | ||
| ストローク | X軸(mm) | 300 | |||
| Y軸(mm) | 250 | ||||
| Z軸(mm) | 100/150 | ||||
| R軸(度) | ±180/±360 | ||||
(注) 張出し負荷長の目安は、R軸が半径100mm以下です。
| 項目 | 内容 | |||
|---|---|---|---|---|
| C4SL(G) | C4SH(G) | C4(G) | ||
| 駆動方式 | X軸 | ボールねじ φ12mm 転造C5相当 | ボールねじ φ12mm 転造C5相当 タイミングベルトで1:1.2減速 | ボールねじ φ12mm 転造C10 タイミングベルトで1.5:1増速 | 
| Y軸 | ||||
| Z軸 | ボールねじ φ10mm 転造C5相当 | ボールねじ φ10mm 転造C10 | ||
| タイミングベルトで 1:1.4減速 | タイミングベルトで 1:1.2減速 | |||
| 繰返し位置決め精度 | X軸 | ±0.005mm | ±0.01mm | |
| Y軸 | ||||
| Z軸 | ||||
| R軸 | ±0.008度 | ±0.01度 | ||
| ロストモーション | X軸 | 0.025mm以下 | 0.04mm以下 | 0.05mm以下 | 
| Y軸 | ||||
| Z軸 | 0.02mm以下 | |||
| R軸 | 0.06度以下 | 0.06度以下 | ||
| 静的許容モーメント | Z軸 | Ma:35.0N・m Mb:35.0N・m Mc:74.0N・m | ||
| R軸 | ||||
| 動的許容モーメント | Z軸 | Ma:11.5N・m Mb:11.5N・m Mc:24.3N・m | ||
| R軸 | ||||
| 最大負荷慣性モーメント | R軸 | 0.01kg・m2 | ||
| 使用周囲温度・湿度 | 0~40℃、85%RH以下(結露なきこと) | |||
| 保護等級 | ー | |||
| 耐振動・耐衝撃 | 4.9m/s2 | |||
| 海外対応規格 | CEマーク(安全カテゴリ対応タイプのみ対応)、RoHS指令 | |||
| モーター種類 | ACサーボモーター | パルスモーター | ||
| エンコーダー種類 | バッテリーレスアブソリュート | |||
| エンコーダーパルス数 | 16384 pulse/rev | 8192 pulse/rev | ||
| 納期 | ホームページ[納期照会]に記載 | |||
加減速度と可搬質量の相関図
■サーボモーター搭載機種 C4SL(G)/C4SH(G)
X軸

Y軸

Z軸

可搬質量と速度の相関図
■パルスモーター搭載機種   C4(G)
パルスモーターの特性上、速度が上がると可搬質量が低下します。
下表から希望する速度と可搬質量が満たされているか確認してください。
Z軸の可搬質量により、X軸Y軸の最高速度が変わります。
X軸

設定加減速度は0.2G以下としてください。
Y軸

設定加減速度は0.2G以下としてください。
Z軸

設定加減速度は0.2G以下としてください。
加減速度と可搬質量の相関図
■サーボモーター搭載機種 C4SL(G)/C4SH(G)
Y軸

X軸の加減速度により、Y軸/ZR軸の可搬質量が変わります。
ZR軸

ZR軸

Y軸の加減速度により、ZR軸の可搬質量が変ります。
R軸の許容負荷慣性モーメントと角速度の相関図
■サーボモーター搭載機種 C4SL(G)/C4SH(G)

■パルスモーター搭載機種 C4(G)

| 許容負荷慣性モーメント | 角加速度 | 角加減速度 | 
|---|---|---|
| 0.010kg・m2 | 300度/s | 0.05G | 
| 0.008kg・m2 | 400度/s | 0.1G | 
| 0.006kg・m2 | 500度/s | 0.2G | 
| 0.005kg・m2 | 700度/s | 0.5G | 
| 0.004kg・m2 | 1000度/s | 1G | 
| 0.003kg・m2 | 1500度/s | 1.5G | 
| 許容負荷慣性モーメント | 角加速度 | 角加減速度 | 
|---|---|---|
| 0.010kg・m2 | 100度/s | 0.1G | 
| 0.010kg・m2 | 200度/s | 0.1G | 
| 0.010kg・m2 | 300度/s | 0.1G | 
| 0.008kg・m2 | 400度/s | 0.18G | 
| 0.006kg・m2 | 500度/s | 0.28G | 
| 0.005kg・m2 | 600度/s | 0.4G | 
| 0.004kg・m2 | 700度/s | 0.55G | 
| 0.004kg・m2 | 800度/s | 0.7G | 
| 0.003kg・m2 | 900度/s | 0.9G | 
| 0.003kg・m2 | 1000度/s | 1.1G | 
海外規格
(注) CEは安全カテゴリー対応仕様のみ対応しています。
選定上の注意
|  | (1)可搬質量によって最大加減速度が異なります。(「加減速度と可搬質量の相関図」参照)またパルスモーターは、最大可搬設定では最高速度は出ません。速度を上げると可搬質量は低下します。回転軸は、負荷慣性モーメントの数値によっては最高速度が出ませんので、ご注意ください。(「可搬質量と速度の相関図」、「R軸の許容負荷慣性モーメントと角速度の相関図」参照) (2)繰返し位置決め精度は本体温度が一定の場合に限ります。絶対精度を保証するものではありません。 (3)動的許容モーメントの数値は各軸の値です。基準定格寿命5,000km、標準荷重係数1.5の場合です。(動的許容モーメントについては5-692ページをご参照ください) (4)型式項目の拡張I/Oスロット1、2欄は、未使用の場合は「E」をご記入ください。 | 
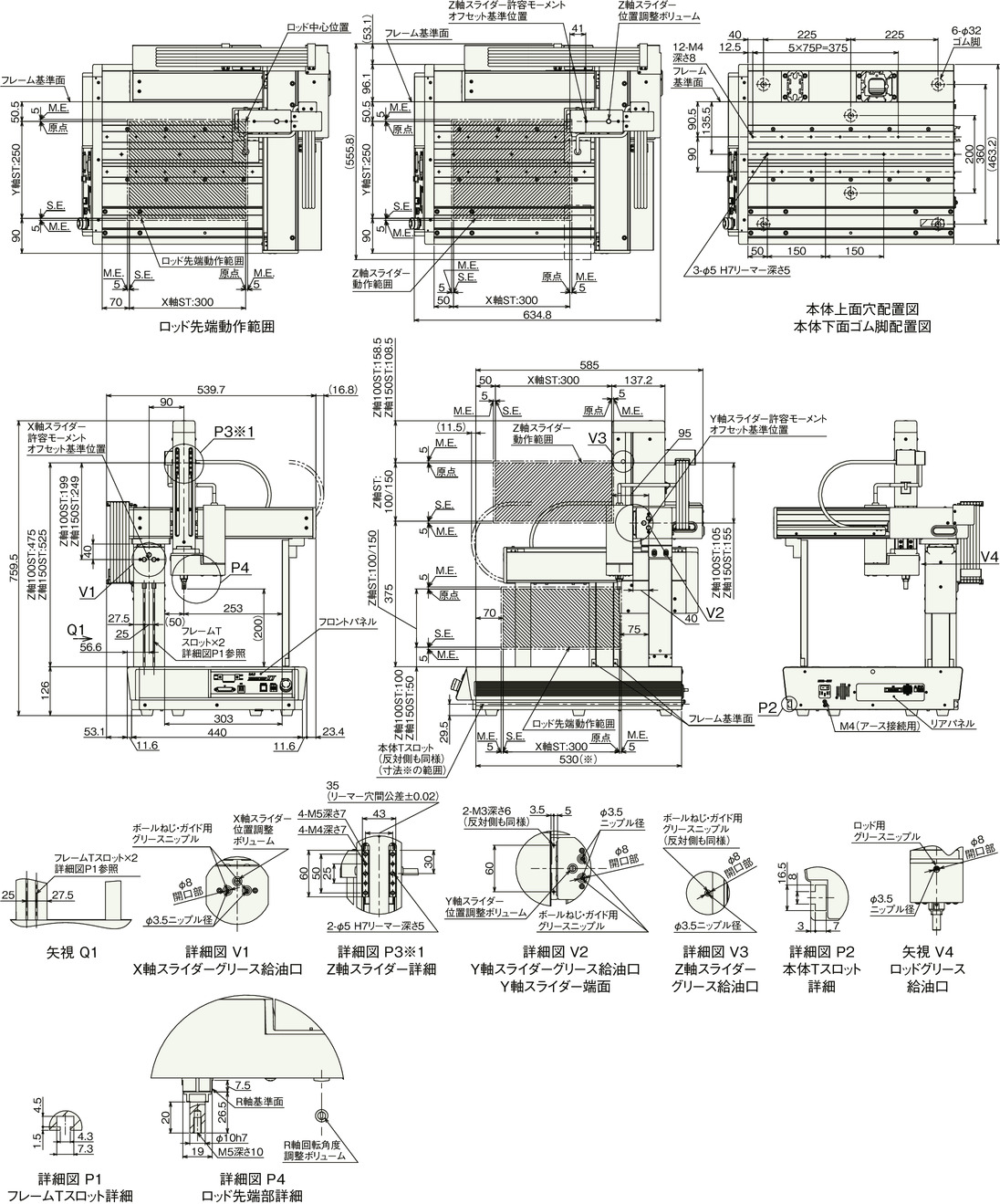
寸法図
ST:ストローク
M.E.:メカニカルエンド
S.E.:ストロークエンド
※1 オプションでカバー付(型式:CO)を選択時はZ軸の前面にカバーが付きスライダーが隠れます。
(注) 本体にワークを固定する場合は支柱の移動範囲に対し2mm以上の余裕を確認してください。
(注) 原点復帰を行った場合は、スライダーがM.E.まで移動しますので周囲との干渉にご注意ください。

質量
| 項目 | 質量 | |
|---|---|---|
| ACサーボモーター | パルスモーター | |
| 本体質量 | 39.3kg | 41.3kg | 
| テーブル部積載重量(注2) | 60kg | |
(注2) テーブル部とは、本体上面部のことです。X軸の可搬質量ではありません。







